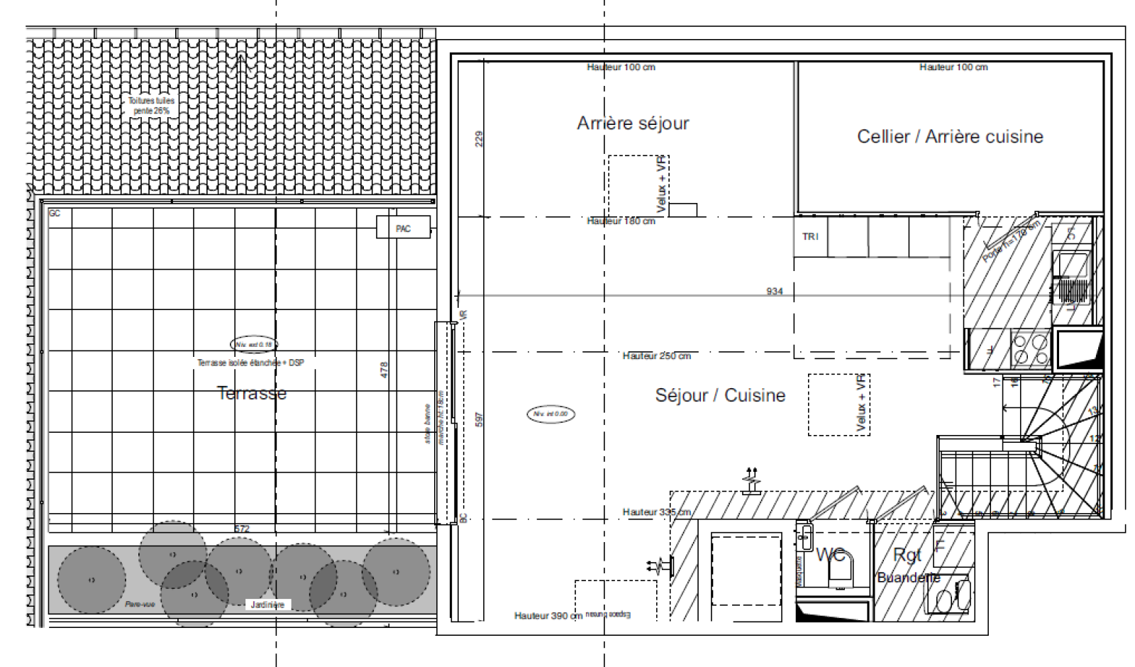
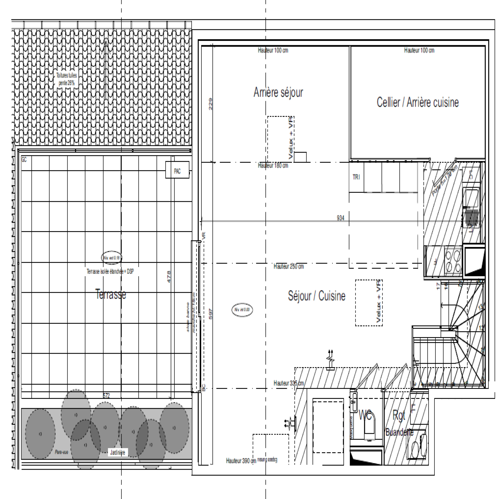
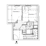
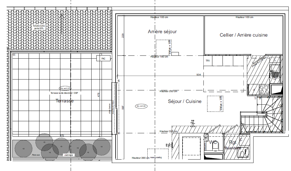
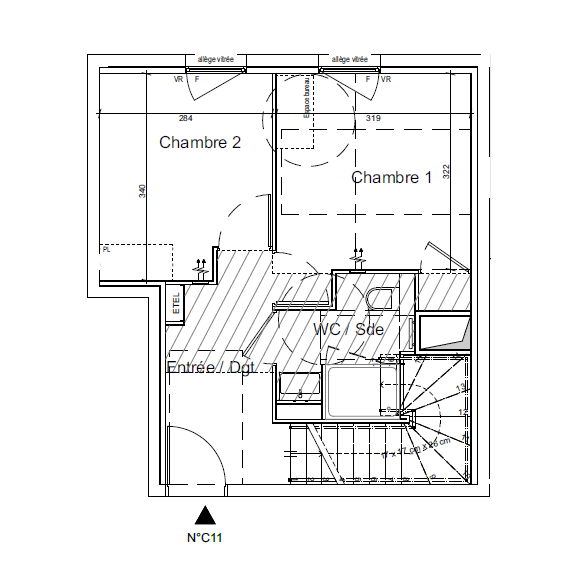
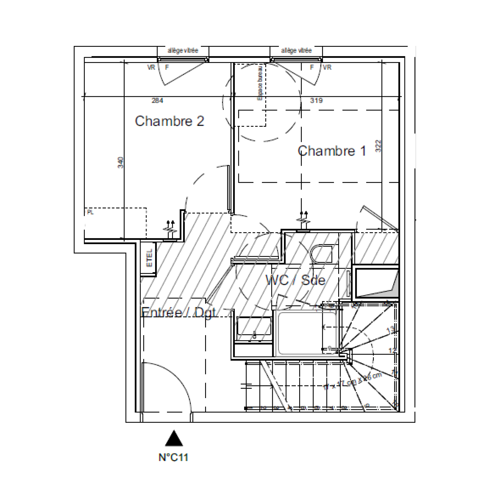
Un appartement T3 en duplex situé au premier étage du bâtiment C d'environ 77m² comprenant ; un salon/séjour, 2 chambres, une salle de bains, dégagement, WC séparés, cellier, une terrasse.
Deux box en sous-sol ainsi qu'une cave complètent ce bien.
Livré en 2027.
